FREE SHIPPING ON ORDERS OVER $600 | NEXT-DAY SHIPPING ON IN-STOCK ITEMS

FLOWFIRE

0

We recommend all modifications to your firearm to be done by a Gunsmith, however, if you are DIY comfortable, thin files or Dremel for careful shelf trimming/trigger fitting, and micrometer or calipers when trimming bolt weights.

PREPARATION

Setting Up Your Kit

Major credit to u/blowback9 for compiling this information. Huge thanks to him and his continued efforts in the forwarding of the Super Safety community. Follow his Youtube channel.

Do I need a full-auto profile BCG?

Yes — a full-auto profile BCG (5.56) or full-auto bolt (9mm) is required. Make sure the trip surface opening is essentially square/flat when looking straight down at the bolt, not curved. The trip surface should have a smooth 90° angle all the way down into the bolt’s hammer channel. Inward curved surfaces at the corners of the hammer channel opening leading to the trip surface can snap the lever off.

Full vs Semi-Auto Carrier

Trip Surface Anatomy

What lower receiver is required?

A low shelf or no shelf behind the safety is required. A high shelf can prevent the lever from rotating and a super safety will not function with a high self lower. Certain low shelf lowers will cause this issue as well.

Low shelf lowers will most likely function. The shelf stops above the middle of the selector cylinder area. A M16 cut lower works best as no shelf is present to impede the movement of the lever. A HIGH SHELF RECEIVER WILL NOT WORK AND WILL REQUIRE THE USE OF A DREMEL TO SHAVE BACK AREA (see diagnostic section).

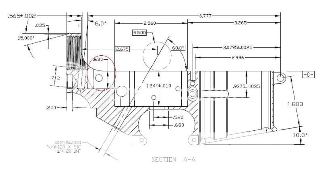
Best way to test this (as seen in the blueprint image below): If the distance from the bottom of the selector hole to the top of the shelf is greater than 0.25″, it’s a high shelf.

High Shelf Vs Low Shelf

High Vs Low Vs M16

Reference Circled Area

What buffer and spring set up do I need?

This can vary system to system. We have had luck with H2 buffers working with higher power springs. It will take some tuning to determine how your specific system runs and what it likes to run smoothly.

Generally, an H3 deadblow buffer and a standard carbine spring are going to be your best bet and run the system. If you want to adjust rate of fire, switching your spring and buffer weights AND/OR installing an adjustable gas block will be your best bet to tuning to your exact spec.

We like Sprinco RED for H2 buffers when running suppressed and Sprinco BLUE springs with an H3 buffer will generally solve any and all rate of fire issues.

Sprinco RED Spring

H2 Buffer Weight

Sprinco BLUE Spring

H3 Buffer Weight

DIAGNOSTIC

Optimize Your Setup

Ready to upgrade?

Browse our full catalog and find the right component for your platform.